【RENT】甲府市桜井町「The simplest nagaya」1LDK/ライムグリーンとスカイブルーの部屋 各91,000円/月 47.15㎡
現在最終仕上げに入っており、あと2週間前後で完成見込のフルリノベーション長屋戸建てのご案内。
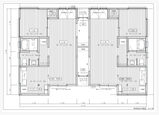
1.「敢えての1LDK戸建」simplestという提案
山梨の中では比較的街中である和戸エリアでの程よい田舎暮らしはいかがでしょうか。
田舎暮らし・戸建て暮らしは興味あるけれど、汚い家や水回りが古い家はやはりハードルが高く、なかなか触手が伸びにくいもの。
建物の年式は古いですが、フルリノベ―ションの上、元々2DKだった間取りも可変式1LDKへ。
来客時は寝室を区切って1LDK、ひとりのときは扉も引き込み贅沢1Rへ。
simplestは、地方によくある築年数を経た平屋戸建に現代の生活スタイルを落とし込み快適化を図ることで、くたびれて放置された民家をレスキューする計画です。
モノに溢れた現代社会において、本当に必要なものだけを買い、モノを増やし過ぎない生活を意識したくなるような住居を提供したい、という願いを込めている。
そして間取りも元々の2DK等の間取りについても極力壁や建具をそぎ落とし、仮に建具をつけても引き込み式等を採用することで、可変式1R(1LDK)としている。
間取りや内装材のの都合上、家族での暮らしは厳しいかもしれませんが、単身SOHO若しくは二人暮らしにとっての最適解かと思います。
ちなみに「東山梨 simplest」は1R一人暮らし、前回の「上於曽simplest黒の小屋・白の小屋」は1LDK2人暮らし/一人暮らしSOHOとして利用されています。
今回は長屋戸建てのため、片方(スカイブルーの部屋)を居住用として利用し、片方(ライムグリーンの部屋)をデザイン事務所・建築士事務所・アトリエなどの職場として使っても面白いです。
そしてあわよくば、アパートの隣人の顔をしらないような寂しい世の中のこの令和の時代であえての長屋で暮らしてもらい、背中合わせで仲良しな交流が生まれることにも期待したい。作りすぎたオカズを届け合ったりとかが生まれるなどのホンワカストーリーが出ていると最高です(筆者は東京在住の際にマンションの廊下挟んで向かい側の方と知り合い結婚しました。)。












▲現在外壁塗装及び瓦修繕中

二つの部屋の間には玄関兼収納として利用可能な土間スペースがある。遮音機能もあり、ロードバイクの壁かけ収納としても利用したい。
甲州街道(国道20号線)、西関東道路・雁坂道(甲府から埼玉県秩父市を結ぶ道)、そして新たに出来る新山梨環状道路が交わる場所であり、
県内-東京-埼玉-静岡等を行き来するような方を想定した場合恐らく山梨で一番交通の便が良い場所だと思われる。
電車の線路も比較的ちかく電車ずきにもおすすめしたい。
キッチン前の大きなはめ殺し窓からは目の前にブドウ棚が広がる。また近隣には下記に記載するような美味しいお店も多いイメージがある。
近くにある西関東道路鎮目ランプからのフルーツライン広域農道(東山広域道)は、道の両サイドを桃畑・葡萄畑に囲まれて、盆地を一望できる信号がほとんどない良道だ。私もたまに走りますがロードバイク好きにはたまらない良コースで野背坂という心臓破りのヒルクライムもあり(標高差約560m)、山梨フルーツライドというロングライドの大会のコースにもなっておりおススメコースです。
2.魚とそばが抜群に旨い新次亭
魚とそばが旨いと書いたが、いや全て旨い。だからいつも行列が出来ているので、少し時間をずらして入店することをお勧めします。
そして定食類は、220円プラスすることで蕎麦もしくは山梨名物ほうとうを追加できる。
多少の金額アップはするものの、是非そばをつけて欲しいです!
銀だらの粕漬け定食もお勧めだし、さんま定食もうまい、メンチカツ定食も肉厚ジューシーです。

▲まぐろ剥き身定食850円プラスミニ蕎麦220円
筆者は、本物件や新次亭からやや車で西側山梨学院大学方面に2分ほど行ったところにあるガトーソレイユという手作りの老舗洋菓子屋さんも大好きで、通りかかると必ず吸い寄せられてしまい家族や友人、お客さんに配るために大人買いをしてしまう。リーズナブルなこともありいつも買い過ぎに注意をしなければいけないと思うのだけれど、ついついいろんなケーキに手が伸びてしまう。近所にあったらうれしいなって思う心がホッと休まるタイプのケーキ屋さんです。
————————————————————————————
本物件は、内装にクロス(壁紙)やパネルは一切使わず、木のぬくもりを最大限感じてもらえるような造りとなっています。
小さいお子さん連れの入居も制限はしておりませんが、壁紙を貼っていないため落書き等の原状回復を考慮すると、単身SOHOやDINKs層に好んで利用してもらえる物件かと思います。静かな環境で集中して仕事をしたい⽅、都⼼との2ヶ所拠点をお探しの⽅、都会の喧騒を忘れて散歩と本とワインに浸りたい⽅いかがでしょうか。
興味がある方はお早めにお問い合わせください。
詳しくはコチラへお問い合わせください。
ABCホームズ
MAIL:homes@abc-advisers.com
TEL:0553-33-3057(7101)FAX:0553-33-5202
住所:山梨県甲州市塩山藤木1900 営業時間:10:00〜19:00 / 定休日:水・日
免許番号:山梨県知事(13)799号
担当:豊岡翠(T.Midori )/菊池たけし(T.Kikuchi)















